Taman Imam Yusof 5
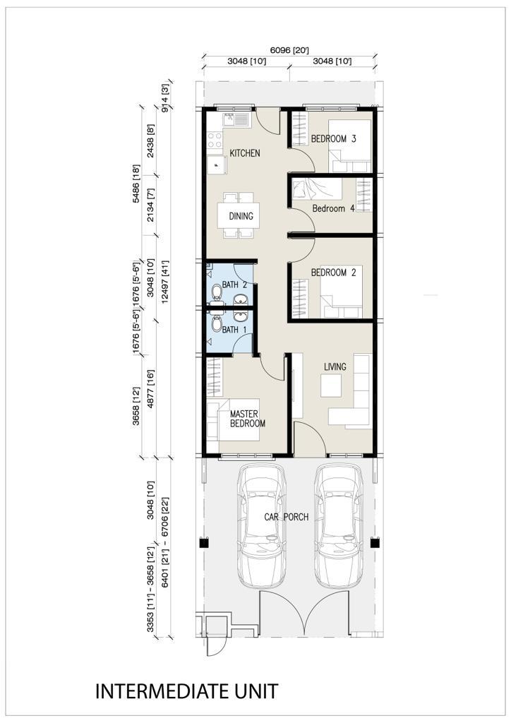
91 units Single Storey Terrace HouseLand size: 20’ x 65′ & 20′ x 66′Build up: 1,020sqft 4 Room 2 BathroomLocation: Jalan Imam Yusof, Pulau Indah
Malay Reserved Freehold SPA Price: Rm347,000 Rebate: 10% Nett price: RM308,300
EARLY BIRD SUPER PACKAGE 0% DEPOSIT FREE SPA FREE MOT CASH BACK RM4,000 BOOKING RM500
Booking: RM100Bayar ke akaun Homefield
Dokumen diperlukan:ICBooking slipBooking form homefieldTemplate booking macam biasa (whtp)
SILA HANTAR PERMOHONAN ANDA DI SINI .